Huh?? It was some derelict commercial building. Nothing weak about this project. Improves the corridor.
I believe you are mistaken for a different location or development all together. This was originally the office building for the Disabled American Veterans of NC. I don’t believe any of the proposed developments by 5 Horizons are demolishing any historic bedroom homes. Here is a picture of the office building before it was demolished.
There’s a sign up now for the project right across the street (two separate projects) where you see those two homes in the background. I’ll get a pic later today.
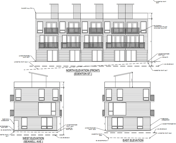
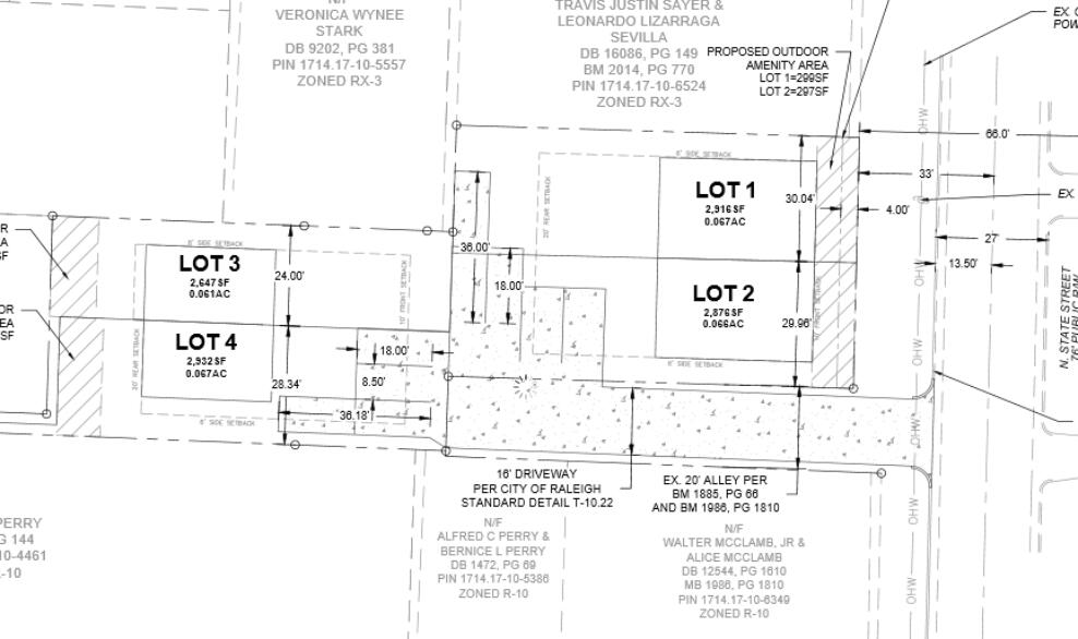
‘801 New Bern’: 20 townhomes. 2 bedrooms each, 18’x30’ footprints. Four rows with 5 units in each building.
I’ll have to check that out as well, I for some reason thought those plans got shelved. I pulled up the most recent plans and it appears “801 New Bern Development LLC” owns it now, and are proposing 20 units with 2 bedrooms each. Same style configuration with garage on the first floor and a roof top deck. It is a real shame to lose that yellow house on the corner, there aren’t many of those left in good shape, but this with 5 horizons development across the street brings 58 new residents to the future BRT corridor. I posted the current plans below.
THIS is what I thought y’all were talking about and what I was bitching about. Sign and sedimentation fence went up yesterday I think.
This seems like a prime example of the trade offs around density and keeping our ‘classic’ stock.
In a perfect world, this would be another target for a grant program that would move the house to generate the density ??
The house on the northeast corner of New Bern and Sewell was built in 1930 and the house on the southeast corner of Edenton and Sewell was built in 1928.
Is the City-owned parking lot at 411 Morson St used for the fire station? If not, that could be the perfect size lot for the yellow house and one way they could incentivize the moving by offering the land? About 5 blocks / ~0.3 miles away. This is all assuming the house is in decent condition. Looks like it was divided up into at least 7 different apartments.
This aerial explains the conundrum that Raleigh has. It’s difficult to expand its urban footprint when the city has to either basically plow through an adjacent grid of older suburban development, or cherry pick small infill lot opportunities like this. Either way, prices will go up.
- AlfredSears House. 801 New Bern Ave. From the architectural survey of the area:
“This two-story Neoclassical dwelling was built circa 1907 for Alfred L. Sears, a traveling salesman. The house has a high hipped root: interior brick chimneys with tapered caps, a central projecting bay and a one-story full-facade porch with Doric columns and a dentilled cornice, now partially enclosed. Features of the house include decorative brackets on the side pedimented bay window, and small hipped dormers with classically paned windows. Alterations include aluminum siding and some replacement 1/1 sash windows. The property was owned by Alfred Sears until around 1919, when the owner listing changed to Mrs. M.D. Sears. Mrs. Sears appears to have occupied the house until circa 1928. The house was divided into apartments as early as 1949.”
that’s a great Logo design…
City of Raleigh sent out an RFI for 3 lots at the corner of Lane & Idlewild to sell for $1 to a developer to build affordable housing. The handout indicates the density should be maxed out for the zoning (R-10)… so 11 or 12 units?
I applaud the strategy, but I’d love to see more units than that. Just quickly looking at the satellite image there, it would seem to me that they could put in 2 story townhouse style units there and get several more units on that site.
Here is the current street view
and the street view from 2007
Looks like 16 units with room to spare used to be there
I won’t miss those 16 units
There were two Triplexes on the two lots to the west that are part of this 1.17. All ~22 units were substandard but it does give an idea of previous density. The original area plans called for dense-r housing here as well.
There’s actually a lot of construction happening on Lane St and more to come.
309 N State St. has 4 Townhomes coming soon:
Redeeming Homes bought this home with plans for renovation/preservation
Directly Across Lane St. this home is currently under renovation with two brand new homes being built on either side of it. One has already been completed while the other is half way finished.










