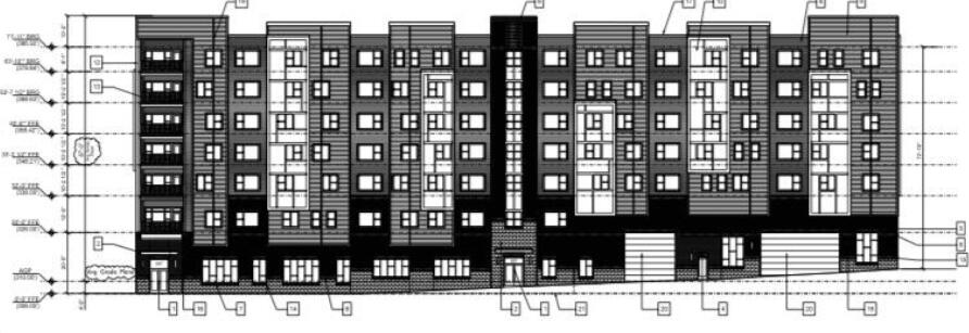
Could you use the elevation from the Moore Square project @Will just posted:
6 Likes
I have been thinking about doing a “new stuff madness” with everything built in 2024. But very hard to find the time with 2 small kids. It was fun to see the engagement on Apartment Madness back when I did this.
2 Likes
I’ve always found The Lincoln to be particularly ugly.
6 Likes
