Hillsborough Street Mixed Use Projects Near NC State

Oh yeah. That is his claim to fame. He is a past president of the American Planning Association (APA) and the American Institute of Certified Planners (AICP)

In the world of planning, he’s the dude!

Raleigh is lucky to have him back and contributing locally.

13 Likes

The plans I have seen are apartment amenity / office / fitness along Hillsborough and then down Pogue streets. I was bummed to not see retail integration

1 Like

What an absolute joke, if you’re correct.

Again, retail spaces do not need to be in every new building to make a neighborhood vibrant or desirable. There will be buildings that will have retail and others that won’t. It’s safe to assume that the developer(s) didn’t see the benefit in or demand for including retail in this development.

This area is no where near lacking in the retail space realm, like Historic Oakwood.

11 Likes

Are you sure you’re not confusing this with the development along Bagwell Ave?

1 Like

It’s so confusing why developers of student housing adjacent to campus continue to splash out on amenity spaces like gyms when the average student who wants a gym is going to use the campus gym…when I was a student I never used any amenity space in any of the apartments I lived in (save for the pool) - seems like nixing these spaces and adding retail would be a slam dunk

9 Likes

Excellent point - particularly since most students have to pay the rec fee regardless of where they live or if they use it.

It’s probably better ROI to go for the amenities. From what I saw living at the Standard, that kind of ground-floor retail stayed vacant forever. Developers might as well lock in higher initial rents with another amenity than gamble on retail.

4 Likes

Standard is way out in the boonies as far as Hillsborough Street is concerned. And there must be something wrong there beyond just the location (asking too much, poor configuration, poor marketing, some sort of restriction, who knows) for them to have signed not even a single lease in this time. Even ugly old Uncommon is mostly leased up by now.

But this spot? It’s right across the street from D-H-F’ing-Hill. Retail here generally stays leased, and if a tenant goes out of business, the space doesn’t stay open long, and a new tenant is generally found quickly. It’s a home run.

7 Likes

Oof realized I had this project mixed up with the one further West. Also drove through Hillsborough earlier to get an idea and man it’s alive. No retail here is a huge miss.

8 Likes

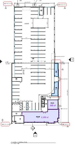
So its called out as “Office/Retail” on Hillsborough and there’s separate office spaces along Pogue. And the Fitness area is on level 2 in the back part of the building.

Although it appears the residential entrance / lobby would have to go through the large retail space?

19 Likes

That’s surprisingly nice looking.

4 Likes

Don’t let the dusk rendering fool you. :wink:

6 Likes

I mean I’ve come to expect this as the peak of design for Hillsborough St, so anything looks great comparatively.

5 Likes


Update hillsborough x bagwell from this morning

17 Likes

well… will this one at least have some pedestrian/street activation? Or does every single Hillsborough St development have to f*cking suck?

1 Like

The fact that no sports bar has taken up the mantle on this side of the street since East Village closed is wild to me. Walking distance to Doak Field, not far from Reynolds Coliseum, and right next to a number of ~5 year old apartments (and only more on the way). Would love to see something open on Hillsborough that I’d be excited about.

3 Likes

Corner of Hillsborough & Pogue? “2600 Hillsborough” is the title of the plan set I have open. Pretty sure it’s the correct one, but it would certainly not be the first time I’m wrong! I look at so many plans each week stuff blends together. The plans I have are the approved set and differ slightly from the one mmodlin posted.

2 Likes

Yeah, mine were from the ASR and have surely changed at least somewhat.

1 Like

Old Wells Fargo progress

14 Likes