Speaking of corner stores - the one at E. Lenoir and Swain St. - which hasn’t been open in at least 8 years and looks like it is about to collapse - has had folks working in it recently. Apparently they’re opening it back up as a store, but not selling alcohol.
I assumed they saw a void in the market with the Haywood store closing down as the only bodega in the area selling loosey Cigs and individual to-go beers.
But I have noticed a crew fixing it up too.
From what I can tell from their site they bought Roshambo and the Current Wellness building next door after they had already been renovated, but they did the work on the part of the building that used to house Game Theory. I’m rooting for them, but the proof will be in the pudding when/if they come through on some of these projects.
The final building concrete pour will happen this week and then steel framing will start in October.
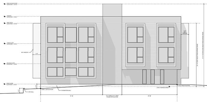
Small footprint apartment building!!! Never thought I’d see the day lol
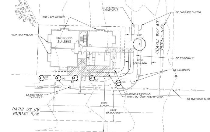
What could potentially be built in this footprint? 1-2 per floor?
I’m curious to see how they make this work. It seems many builders are giving up on the home renovation or build a new SFH. Townhomes, condos, apartments are mostly the new projects in the area.
They did something similar at 323 S East st a few years ago - tore down a very similar house and put up this thing, which I think is 4-6 units…I imagine the Chavis Way project won’t be nearly as unique as this (few things are) but it’s definitely feasible
I’ve been very happy with the CFS framing product, it’s being panelized offsite and should be installed quickly with our amazing framing team!
How many units will this have in total?
21 units. Liveatloft3.com
TBJ posted an article about this project but it’s behind a paywall. The rendering looks really nice:
Raleigh couple plans 11-unit condo building near Transfer Co. - Triangle Business Journal
Third-floor joists are being installed this week as construction progresses to the next residential level:
Dunno what you could share but I’ve walked past this recently and it looked like it was in use as a home again. Didn’t pan out?
Wait what? It’s not wood frame? ![]()
















