I’m curious about land costs in these particular areas compared to those in the city center proper?
Say they even got the land for $10/SF on average size of 2,000 SF units - the project has some noticeable common area infrastructure cost (the storm water)
Land - $20,000 per unit ($10/SF)
Hard Cost - $350,000 ($175/SF)
Soft Cost - $26,000 ($13/SF)
Carry Cost - $16,000 ($8/SF)
Total Development Cost - $412,000 ($206/SF)
List Price: $550,000 ($275/SF)
Selling Cost [6%] - $33,000 (~$16/SF)
Profit of $105,000 (20% margin) assuming they got the land for $400,000 and it sells at $275/SF - if it even dropped to $270/SF like the comps, they would be at some pretty low margins given the risk.
Do you think they might have had to sell at a true loss on some of these projects, or that the ROE was just too thin given the risk? (I was literally talking to someone this morning about how a lot of these projects run on thin margins and so if governments do things that raise costs even a little it can sometimes tank whole projects, so it’s interesting to see real numbers tied to an actual project, even estimates.)
To be fair, the project looks pretty cookie cutter with models like that sold all over the place. My initial vibe from the project is NOVA burbs outside of DC. I am guessing that they have their supply chain locked down pretty tightly and procure in volume compared to more bespoke developers.
The Grey was likely profitable for Stanley Martin because they had numerous factors:
Economies of scale, they have two unit types and repeat them dozens of times, they are a large company so they are ordering numerous appliances, floor plan is very oversized, their small unit is still 1,500 SF, they sell with in-house sale, large/proven corporation for favorable debt terms, high density so their land cost are very reasonable, etc.
I don’t know the exact nature of City Hike or South Heights, but I imagine their margins are getting very thin with slower/lower sales which hurts in 2 ways, first it means the project didn’t generate profit that the developer might have “counted-on” and if they had outside investors, they might have a distaste for future opportunities making another project less cut and dry.
I would note that cost per square foot in construction isn’t very consistent because so many building components don’t scale linearly with size. A small 700-SF one-bedroom still requires a full kitchen (cabinets, countertops, and appliances) which might total roughly $11,500 whether the unit is 700 SF or 1,500 SF. As a result, that kitchen equates to about $16/SF in the smaller unit but only around $8/SF in a larger 1,500 SF one. The same dynamic applies to windows, bathrooms, HVAC systems, and other fixed-cost elements, making $/SF comparisons highly variable and often unreliable without consideration of the product (not to mention when you get into condos/commercial buildings things like elevator, sprinkler system, and other equipment cost that must be distributed). When you see a North Hills house selling for $600/SF but 5,000 SF - its because of “chunk cost” like land at $700,000 alongside more expensive finishes in select areas.
I’m pretty sure that the sales in City Hike were an investor bulk purchase. They didn’t seem to close less than list price which makes me wonder if it was just a transfer to a new LLC versus a traditional sale. Perhaps they will end up like the house in Row 12 and will be marketed as short term rentals.
TBJ dropped a story that these will be rental townhomes. Disappointing.
https://www.bizjournals.com/triangle/news/2026/01/08/rental-townhomes-near-downtown-raleigh.html
Definitely a mixed bag. They look cool, but they have garages in the front. Wish the site plan had alleys.
They purchased the property for $1.2M in 2019, so they are at $60K/unit excluding holding cost (but theoretically you would want to mark-to-market at ~$1.6M $80K/unit which at the 2,000 SF unit size is $40/sf but since the developer has noticeable experience at mass produced home building (sold company to DR Horton) so they can probably build for $150/SF or less.
Curious what rental rates they are targeting, I do see a lot of The Grey units are listed for rent around $2,700
312 MLK has an Administrative Site Review submittal for townhomes. Looks like the property is owned by Dukes Properties. Not a lot of information yet.
It’s the wrong product type for that corner, but lenders are comfortable with townhomes in walkable, urban‑adjacent areas. Most traditional financing avenues have made it clear they have very little appetite for townhomes in suburban locations (not that this one). I’d imagine any market analysis would look at South Heights and City Hike and conclude that new supply just isn’t feasible right now for this site. Dukes has another project under construction (PNTE 35) which is targetting the $395,000+ price range, but $340,000 townhomes in a “comparable location” aren’t selling frequently: https://www.redfin.com/NC/Raleigh/443-N-Fisher-St-27610/home/178222629
I hate this…I loved that old funeral home in this spot. Hate that it was torn down. Could’ve become a really cool asset for the neighborhood (something like Heights House in Boylan)
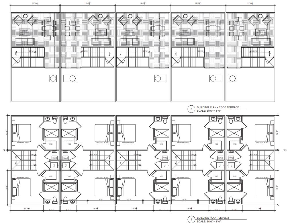
Why in the world would anyone build a 3 floor townhouse today with only 2 toilets?
I can’t express how great it is to see the parking lot tucked away off street by the railroad track, instead of fronting on Blount. That is really excellent.
Unfortunately, the main body of the funeral home burned down, I don’t remember how long ago (4 years?). A member of the family was then living in the remnants for a while in what was apparently nigh on unlivable conditions, but then that section of it also caught fire. So while it was a really nice old building (and one of if not the last one in town built by the Lightners), ultimately it was demolished because it burned and became a hazard. Putting anything at all back on the location is probably a net win, even if the current design looks iffy.
7 townhomes, 2-story with roof top patios, no garages, 5 parking spots
Brick and hardie siding
Soooo, the roof patio stairs go down to a door at a landing below the roof? that seems like massive leaks waiting to happen.
The second floor plan reads like a perfect roommate situation. That would mean that we could reasonably expect 14 cars. While we applaud a site plan with fewer parking spaces, we can’t ignore that it’s unlikely this development will house residents with a total of 5 cars. Does the “toothpaste tube” just get squeezed such that the other cars are pushed to the public realm?

Just asking reasonable questions. Boo all you want.
Almost 25’ of Right of Way dedication





