This is a pretty exciting project in my book. Looking great!
Looks like they are looking for a restaurant operator to lease the rooftop and lobby F&B space:
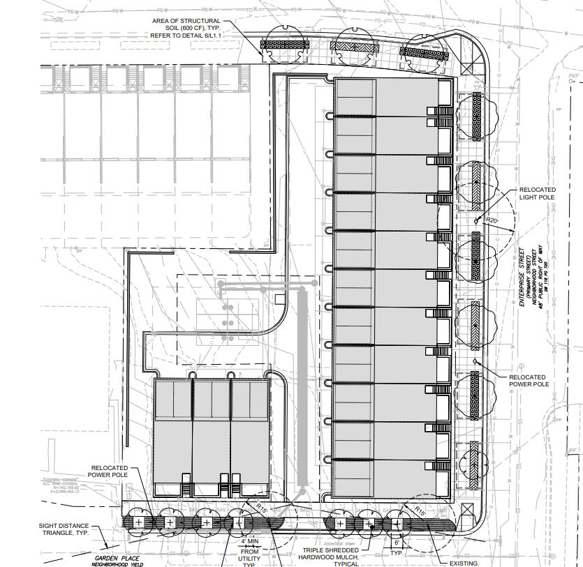
The site plan is in the Design Review Commission Agenda for the 14 townhomes on Enterprise.
(Sorry to mention this since its not downtown)
I’m a little surprised Lambert is still considering moving forward with townhomes, not the appropriate product for the site especially with the OX-5 zoning.
I love it, I love it, I love it ![]()
Ughhhhhh yeah, what a lame outcome. Was hoping for another 5-story apartment/condo building with some corner retail space on Clark/Enterprise. Short sighted development strikes again. I’d have hoped that someday the entirety of the Cameron Village area and surrounding streets would be lined with shopping and dining options.
Well, on the bright side, this lot will hopefully not be vacant for too much longer. Also, there are a few other vacant lots nearby that can be developed into denser housing with retail.
I’m not sure how townhomes are going to work out there, they are going to have to price for more than the Clark Street townhomes - the last re-sale there sold for $1.15M which is probably not going to help pre-selling this new project.
Same. I assume the developers are scared of market saturation since a lot of student-oriented apartments are already lined up along Hillsborough St. Safer to build luxury townhomes for wealthy transplants who want walkability to shops and restaurants.
Well, they’re gonna have to walk alright, because they’ve guaranteed no shops or restaurants anywhere on this damn block now.
I love the paver siding material they’re using, the arched windows are also a nice touch.
That rooftop will be pretty sweet too
Ahhh, finally my view from my gym won’t just be YELLOW

Walked by The Oberlin hotel this morning during an errand loop.
Photos below are:
North (Smallwood) & West (interior drive off Smallwood) facades
East (Woodburn) & North (Smallwood) facades
South (interior drive off Woodburn) facade
The south facade is the “front” elevation with covered dropoff/checkin at the SW corner.
The covered patio for the rooftop restaurant/bar will have very nice views of the DTR skyline to the southeast.
Getting there! Excited for the rooftop bar to open. Also McHenry’s, the new classy cocktail bar in this neighborhood is opening this week I believe.
This maybe my favorite building in awhile.
It reminds me of the Sir Walter downtown.
Except, you know, an actual hotel that makes the surrounding area better…
Took a detour on the way to the library today to see how far the exterior brick facade had progressed for The Oberlin hotel.
Believe the boom crane is preparing the mounting hardware for a large “O” sign that was located there in the early renderings
West, North (Smallwood), and East (Woodburn) facades shown below:













