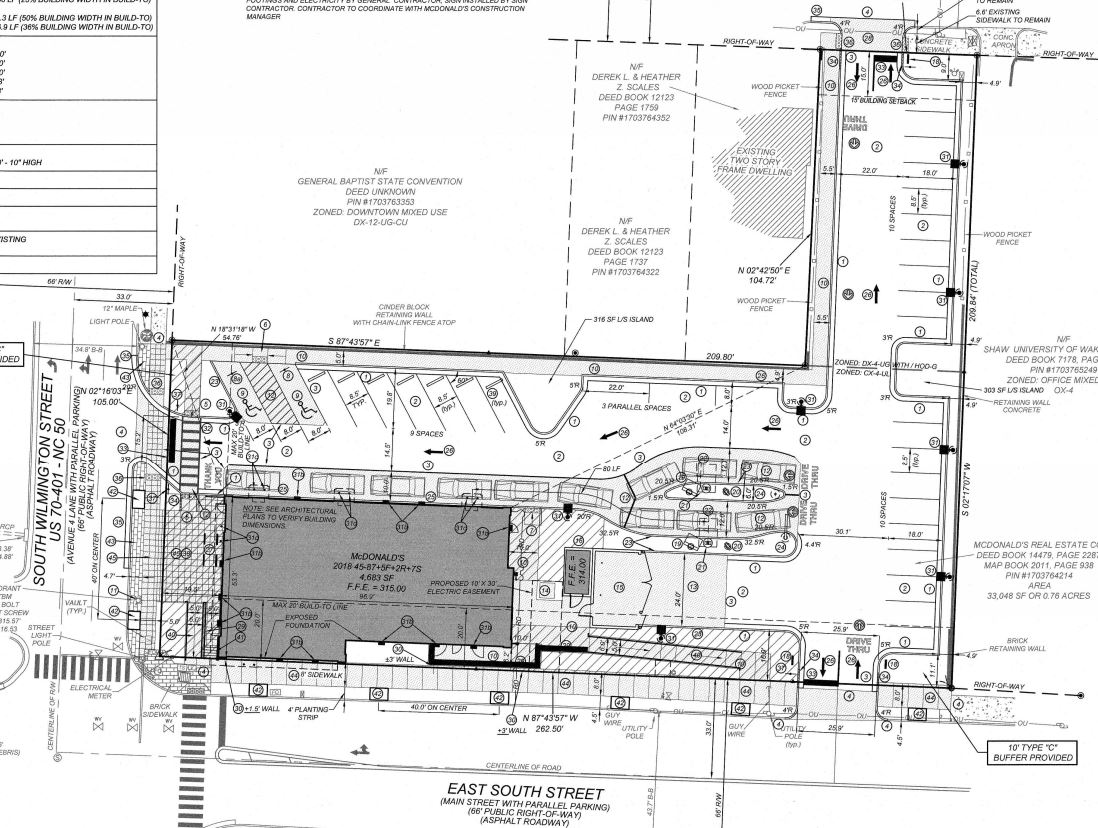
McD building hugs the corner sidewalks. Front doors on Wilmington. Yall gonna stop complaining about this now?
Can we tear down the one on Peace to at least get this? That said, it’s still a huge waste of land for a parcel that’s zoned for 4 floors.
And a fountain!

I’m sure that it will have a soda fountain.
Let me reiterate how bad the Peace Street McDonalds is. We have interns staying at the Revisn next door and not only can they clearly hear every order at the drive thru, they said the most annoying part is the deliveries in the early mornings that wake them up. They are on the 4th floor so I can’t imagine how bad the lower floors are.
The design of the Revisn HOTEL contributes to the horrible experience because they choose to position a ton of windows facing the rear of that McD’s. There once was a cool, industrial condo proposed for that parcel that minimized windows on the sides by placing unit windows either facing Boylan or to the rear of the property. Alas, we lost that project in the 2008 financial meltdown.
Apologies in advance that this is blatantly off topic. I’ll delete my post if anyone has an answer (or even if no one does). Does anyone have any idea what’s going on with the Durham Food Hall? It’s been almost the whole year so far with no change inside. I know Morgan St had a ton of delays and Transfer Co. continues to move forward in phases, but they both had at least some slow progress.
This won’t help much but I’m going over there next week I can poke around. (Google is speculating an October opening. They had Weaver St listed as Aug 30 at one point which was pretty close)
My take is that weird free standing high rise office buildings don’t make for relaxing coffee spaces. Seems like the successful shops have a cozy space for people to burrow into for a while. Whoever attempted that walkup counter on Martin St closed up fast too (was in VAE maybe…?).
Was having this convo on Twitter with a few people, but wanted to see what people thought here. The question is why restaurants aren’t able to make it on Fayetteville St.
There is probably a ton of factors that are making it tough, but as someone who spends a lot of money eating/drinking downtown and almost NONE on Fayetteville St, I’ve been trying to think what would change that.
Without really trying to look into it too much, my initial thought is that it just feels too open, too sterile and lacks intimacy. I also think there is nothing exciting happening at the street level that is drawing in passers-by.
Here are some spaces in NYC that I think integrated some nice sectioned off outdoor seating to create a sense of space, connectivity to the restaurant/bar, and some interest to draw in customers.

Now, currently restaurants that have outdoor seating on Fayetteville St are putting it on the other side of the pedestrian right-of-way,. I think this is awful. You dont even feel like you’re eating at any restaurant. You’re just floating out there in open space with pedestrians just walking right next to your table. Something about it is just unappealing IMO.
Bc of how we have the sidewalks laid out (w/ the benching and platings) there really is no room to pull off what NYC and most cities are doing with mini-patios that push out into the sidewalk, but are sectioned off.
I am wondering, if this turnover keeps up, would the city think about reconfiguring the sidewalk?
With the addition of the new Moore Square and those new cut-throughs (between Fayetteville and Wilmington) there is already a ton of public seating options that we didn’t have when Fayetteville St was first reopened. So why not remove some of the benching or reconfigure it and go with a layout that’s more restaurant/bar friendly while still giving a nice amount of walking space on the sidewalk. (Sorry for the sloppy mockup)
I’m not saying this is a well though-through proposal, but it’s something I’ve been wondering about for a long time and wanted to see what you all think the pros and cons would be of reconfiguring Fayetteville St. like this?
I think part of it is that people think of that as the “business” street, not a restaurant destination. I think it helps when there are a cluster of restaurants together like on Wilmington.
I also think part of it may just be ideas/execution aren’t the greatest. The Wahlburgers I think there was management problem, and I personally didn’t love the food at places like Pizza La Stella and Bare Bones.
And finally, I agree with the earlier poster who noted that those are some pretty big spaces, and since real estate is paid for by the square foot, it is tough for a really large restaurant to make it unless they are really popular. Again, someone noted that places like the Raleigh Times grew organically over time as it was able to support more space.
In my opinion, Fayetteville Street as a pedestrian mall would probably now work with more people living, working and playing downtown. I was an outlier, and probably still am, but I wasn’t for the total reopening of the the street. At this point, I doubt that the street would ever be closed again, but I’d really like to see the street narrowed even more by eliminating the parallel parking and opening up more opportunity for an engaging sidewalk/cafe experience. A few key drop off zones could be created for trolley/small bus/rideshare use, and the city could offer more sidewalk space for adjacent businesses for a rental fee.
how much was that? 
Looks burnt, don’t eat the burnt crust, that is pure cancer my friend.
$12 or $14 I think but it was the Hopscotch menu so not sure the normal price.
My dad was a cancer doctor, he would freak out when anything was charred like that, turns out he was correct. Anyway, the pie does not look good IMHO, expected a better looking product from the best chef in the southeast. Love her restaurants though.
MMmm, looks authentic. Napoli style is the best! I highly doubt the cancer rate is higher among the Napoleseans.
Everything gives you cancer. I don’t think one slightly charred pizza crust is going to kill you. That said, I don’t care for neopolitan style pizza, and that looks like it at its worst. I make better looking pizza than that at home. I was hoping for better. Oh well, I’m sure it’ll win her another award and everyone will rave about her ingenuity



