Hillsborough Street Mixed Use Projects Near NC State

Went to Packapalooza for the first time today and met up with John. My penguin half, an alumna unlike me, was sadly out of town. It’s quite the event! Also got my first taste of howling cow ice cream, which did not disappoint. I didn’t really take pictures except for this:

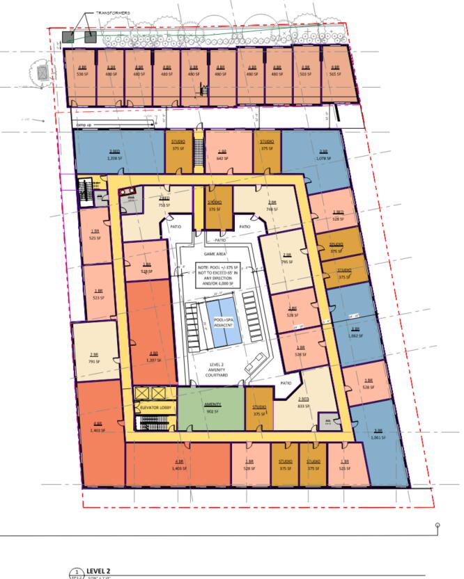
They had a booth about the upcoming Hub apartments tho which was neat. I hadn’t seen the rooftop renderings before. Looks fun.

But most importantly, downtown Raleigh now has IKEA finally! Small format store…

18 Likes

That rendering shows entirely way too many colors for a project in Raleigh. Unacceptable. Ban it!

5 Likes

Brick it is

24 Likes

What did it say about a “First floor coffee shop”?? Is that going to be open to the street / public??

1 Like

That was all it said. I guess so? I figure I could pass as a student anyways…

5 Likes

Hey I’d just be happy if they planned a single street-activating retail space for a future coffee shop, considering this entire block was assumed not to have ANY even though they’re about to have 2,000 kids living right there

4 Likes

If anyone has any interest, the Hillsborough St Community Service Corporation just released their survey for their 2040 Vision for the street.

2 Likes

Looks like there might be some demo prep happening here? College Bev 1 has relocated as well.

11 Likes

Refresh my memory. What is the plan for this corner?

2 Likes

Yep

3 Likes

Good. More housing in a growing walkable location to the university.

3 Likes

Will this be another hideous looking student housing complex like the Uncommon? Where they seemed to have sourced the cheapest looking materials they could possibly find.

1 Like

142 units!

11 Likes

It’s unfortunate that only 1 spot along Hillsborough is allocated to retail in this project with the vast majority of the sidewalk facing space given to their fitness center and lobby.

3 Likes

True, but enough empty retail already along Hillsborough. Seems ok to let those existing spaces be the retail nodes.

6 Likes

The bigger crime is placing a garage entrance on one of the most pedestrianized streets in the city. Gonna be a nightmare for drivers and pedestrians alike.

18 Likes

If its a large entrance, then pedestrian visibility shouldn’t be too much of an issue with low traffic entering and exiting the building; it will also be right-in-right-out.

2 Likes

Summer is back and my daily walks have been taking me through shaded neighborhoods. Nonetheless, I did pop out to Hillsborough a few times to snap some shots.

23 Likes

Raleigh needs more shadows

6 Likes

Just went by this and looked at the progress but forgot to get any pictures. Thank you for the help :smiling_face:

3 Likes