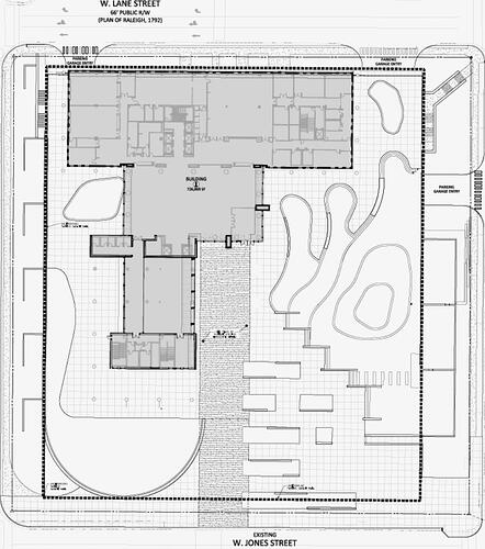
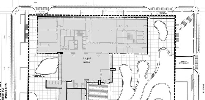
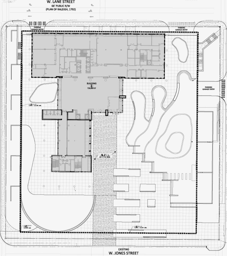
This may have been shared previously, but I found this drawing of the Education Campus. There may be additional documentation available on this site, but, alas, I do not have an account.
I’m confused here, the photo says the building is 726,000 sqft. That sounds absolutely massive. Are they counting all the parking underneath?
I feel like they have to be. That’s the footage of PNC tower.
If not this thing is taller than we think.
The parking levels are partially below grade so at least the plazas on Jones St are at grade.
Yeah, it’s on grade along Jones St, but the other three sides of an entire city block will be comprised of raised blank walls. Not exactly a place I would want to walk.
With that plaza out front, open spaces like this are kind of inappropriate with the low density that this part of downtown has, even more so with Halifax Mall being catty-corner. You’ll be hard-pressed to find anyone out there, especially if the employees arrive to the building in their cars.
In, say 30 years, if the city takes over Caswell Square across the street and turns it back into a park, then this project would kind of screw over its success by having no interaction with that whole side of the block.
There’s not, I made an account months ago and check periodically.
Can someone elaborate on what they’re deducing from the one grainy site plan? I see some stairs in places and the large plaza space, but it’s not clear (to me) that 3 sides are going to be a wall along the sidewalk. Can you please explain how you’re interpreting this?
Yeah I think we’re jumping to conclusions a bit. I, too, am annoyed that there’s so little building in this giant block of a project, especially with the underground parking. I guess we should be happy it’s not surface parking. If the building itself looks cool, and if there’s different elevations and good landscaping in the “park” like the little image suggests, it could be a nice gathering area for people visiting the museum across the street.
I am confused about the thick dashed-line border though. Is that actually a wall? Do we know that this is the ground floor, or could it be a roof and the main building takes up the border, with additional height building protruding from it? This is such a mysterious project… LOL
Just rotated the pic for easier viewing. The museum is at the bottom of this image, for reference.
It’s described as the parking garage wall, with the north end having nearly a dozen stairs to climb, while the south end looks almost level to Jones St. walking from the Nature Research Center.
As someone mentioned earlier this square footage is massive and actually larger than the Wells Fargo Building. I am skeptical if they’re allowed to claim square feet in a parking garage that isn’t heating and AC.
Ok thank you both, mine wasn’t high res for some reason. Now I see “underground parking garage wall” pretty clearly. I’m sure this is wishful thinking but maybe that’s referring to the perimeter of the parking deck underground and not above.
I will invite the person who has allegedly seen the renderings to chime in once again. You wouldn’t blow your cover if you confirmed this small detail for us.
Looks like there is a lot of plaza area for protests.
How considerate of them to provide that infrastructure.
I used google earth to measure an approximation of that longest wall, got 300 feet since it takes up much of the block. By comparison, i eyeballed the 300’ and by comparison took 1/3 that for the other dimension. see my edits in red. 2nd block i did 150 x 80 since it looked half as wide as the top by the street, and about 75-80 % other dimension. 3rd block lookd about the same, just rotated 90 degrees.
All that added up gets you 54,000 sq feet per floor, and if you need to get to 726,000 sq feet, that would take just over 13 floors. Am i missing something? Am I way off? If I’m anything close, it would explain why the cranes are so tall…this won’t be 6 or 7 stories.
from construction website:
*The Education Campus will consist of approximately 250,000 gross square feet of space, including 1,000 below-grade parking spaces. The project includes demolition of the current buildings on the site, construction of the site and utility infrastructure to serve the new Education Campus, and parking. *
the taller crane may not indicate height but only that tall to avoid hitting the other 2 cranes that is common. I say this is 5-6 stories maybe 7 but not any taller given it is 250,000 sq ft. 6 floors is 41,666 sq ft floors or 5 stories would be 50,000 sq ft.
Someone on here said it was 9 which makes sense with set backs.
This adds up to me. Clearly not 720K office SQFT.
someone who should know for sure told me 6 but I am sure that is only the above ground levels so maybe 9 levels but 3 below ground? For the life of me I don’t know why a rendering has not been released.
Maybe it’s really, really ugly and nobody wants to trigger the community?













