Yup. Looks like they’re working through Land Disturbance. Imagine they’ll be tearing up the lot very shortly.
Could someone repost the renderings or any updated ones?
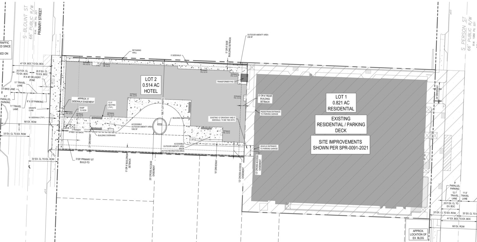
I found this interseting also:
“There is also no parking associated with this project. Required parking will be provided in an adjacent garage being constructed under a separate permit.”
Which additional project will have a parking deck? The skinny hotel next door that was proposed? Seems strange to wait on that development to provide parking.
I’m assuming it means the now existing apartment complex.
The current apartment complex has arrows and direction for hotel parking. So, it’s already built in
It’s also interesting how they chose to design this in a way to make it seem like it’s on the corner of the block instead of the middle of the block. It’ll essentially have an alleyway as an entrance.
Hideous building… that said it’s better than a parking lot.
At least it won’t have a parking deck loading ramp disrupting the sidewalk. NICE!
The is the 2nd phase of the WRBCO project, the Acorn/Parking structure on Person Street was built to handle the hotel’s parking needs.
Was this the east wing of the White House?
So is this the hotel portion going vertical?
I noticed this work this week and just put up the latest here. Nothing new to share but I am hoping this is work for the hotel and not a parking lot. Seriously, I wouldn’t be surprised if they are actually just going to pave it over and use it for parking.
This 2022 site plan needs to be reviewed as it shows the hotel’s layout.
They have been putting in foundations for over a month now so I’m pretty confident this isn’t for a parking lot.
Found their ASR approval document.
Believe we may be seeing legitimate site work under the terms of this document.





