I’ll stick to just a regular infinity pool, thanks.
Maybe they could just build two infinity pools.
Or better yet, they could build three infinity pools.
Then it would be two infinity and beyond. 
David meet David, It’s nice to meet you David. Likewise David.

Last I heard they were having issues getting this within budget. The May budget round was a “little more” than they expected. Additional height might be a try to add ft2 and get the current budget to work.
I really hope it works out as this is such a neat redevelopment plan.
@5pts, we need more uplifting/positive news for a first post. Please edit your comment and say they are breaking ground next month. Kthx.
Kidding aside, welcome to the best DTR forum in the world!
Brother you and me both wish it was more uplifting. There’s some cool architectural details on this building that aren’t anywhere else in Raleigh. I’m 100% gunning for it and sure hope I can give good news at some point in the future.
Such is the life of construction in these days though. Material price changes and lead times are just wreaking havoc in the market.
Anymore news on my favorite Project planned for Downtown Raleigh?
I think someone said it starts construction next month?
I’m unsure the groundwork start date, but wouldn’t be surprised if it was next month. The building itself is still undergoing some design changes. When that will be wrapped up is the $64,000 question
I was told by a Turnbridge rep on their Instagram account that they are looking to start or break ground in the late fall of 2022 for what its worth.
That’s consistent with what I’ve heard and from a different angle. Love it when info lines up!
Yes it is Worth really good idea
8 posts were merged into an existing topic: Downtown hotels
Looks like we’re seeing some action! Reported this morning in RALToday and by Arc Royal yesterday on Instagram.
The Ark Royal Tiki Bar announced that its last day at its current location due to rezoning is Sat., Sept. 24 . Turnbridge Equities the parcels at 400 + 410 Glenwood Ave. — which also includes the Creamery — in March 2020 and is permitted to build up to 40-stories.
Was wondering what was going to happen to Ark Royale. Was short lived at that location.
I refuse to believe they entered into any kind of lease with no knowledge of what was going on and timeframes. Even their Instagram post sounds kind of gloom and doom and incorrectly says they’re building “a new structure on the entire block”. When they opened we (the forum and lots of others) already knew what was happening with that block and I was really surprised they bothered to build out a whole themed bar that actually looked pretty nice given the near term plans to demo that building. Anyway, I do hope they find another location to land as I do think it’s a cool bar.
Seriously, one google search or a halfway ethical building manager and/or real estate agent was all they needed, and it seems silly to think they didn’t do/have any of the both.
No your right, Patrick knew what was going on before he even began. I think a good amount of the money spent was more decorations, furniture and art work, so it can be moved to another location.
I’m really looking forward to this development!
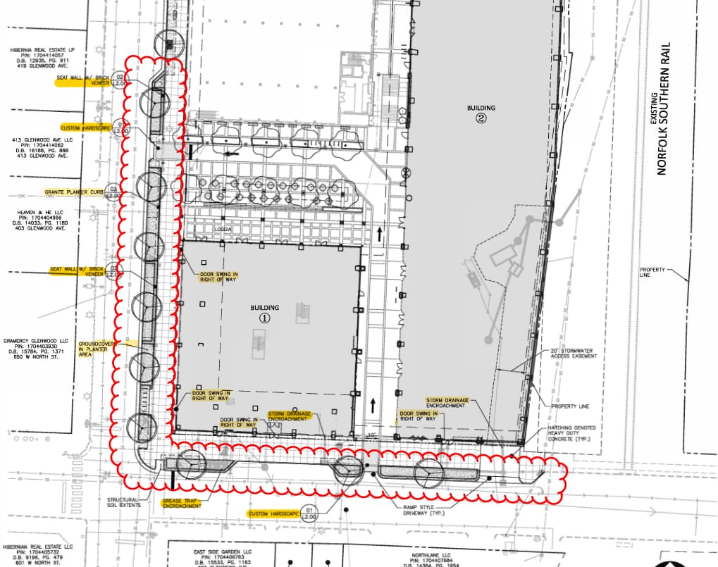
On the City Council Consent Agenda today… developer is requesting to eliminate the street parking and add planters, hardscaping, seat walls, etc…
Effectively widening the sidewalk in front of this project. 
That’s a good idea I will look much better with landscape and beautiful trees
